schöne tür, haben auch eine weiße ausgewählt. finde diese presspappentüren mit holznachbildung nicht so toll.
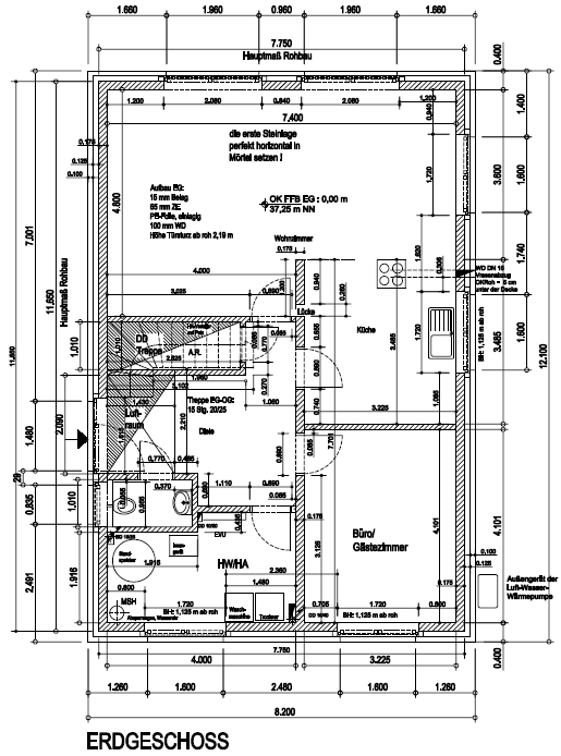
wir haben unseren grundriss für die bauanzeige bekommen. paar kleine änderungen kommen noch hinzu, die baudurchsprache ist eh erst ende nächster woche. die position des hauses auf dem grundstück ist ziemlich simpel (weil fast perfekte südlage, siehe nordpfeil) und ist eigentlich im inneren das einzige was das bauamt interessiert (in welche richtung eine innentür aufgeht ist denen ganz sicher egal).
grundriss erdgeschoss:

Änderungen:
- Wohnzimmer/Küchentür wird nach Links an die Wand gesetzt, so das man über die Küche ins Wohnzimmer kommt. Vorteile: Wohnzimmer hat mehr Stellwand, während in der Küche keine Stellfläche verloren geht. Die Tür kommt so weit von der Ecke weg(~650mm), das im Flur ein großer Schwank an die Wand passt (da wo jetzt die Tür sitzt)
- Wohnzimmer wird gefliest wie Küche, damit der Kamin und Boden aus einen Guß sind.
- Habt ihr weitere Punkte?
Als Konstrukteur habe ich natürlich mein Haus in 3D nachgebaut.
Anbei die Gesamtansicht des Grundstückes, N ist Norden und der blaue Bereich die 3Meter Bebauungsgrenze (gilt in SH nicht für Carports bis 9Meter)
- Unsere Möbel im Wohnzimmer mit der Leinwand vorm rechten großen Fenster. Der Beamer kommt natürlich an die Decke, der Fernseher ist das rosa Teil an der rechten Wand (inkl Unterputzleitungen...)
- Meine Partnerin möchte gerne den Eßtisch direkt an die Wand stellen (inkl Fenster), so das wir mehr Durchgangsweg haben. Das linke große Fenster wird später unsere Terrassentür werden. Ist Wichtig für die Lampenplanung. Wie würdet Ihr das machen?
- Wir würden gerne ein paar LED Deckenspots mit einbauen ins Erdgeschoss, habt ihr da Ideen? Ich wollte damit vor allen die Wohnzimmerecke ausleuchten (Beamer/Kinofeeling) und vielleicht in der Küche die Arbeitsplatte?!
- reicht im Gästebadezimmer ein Spiegellicht?
Mein Zimmer: ich mag es nicht, wenn der Schreibtisch an einer Wand steht (ich würde zwischen Schrank und Tisch sitzen). Ich wollte die notwendigen Dosen unters Fenster packen (Richtung Tür), so das mein PC dann hintern Tisch auf einen kleinen Schrank (nicht zu sehen) in der Nähe der Tür stehen wird. An/Aus wird er dann über eine Schaltleiste, bzw einen Unterputzschalter.
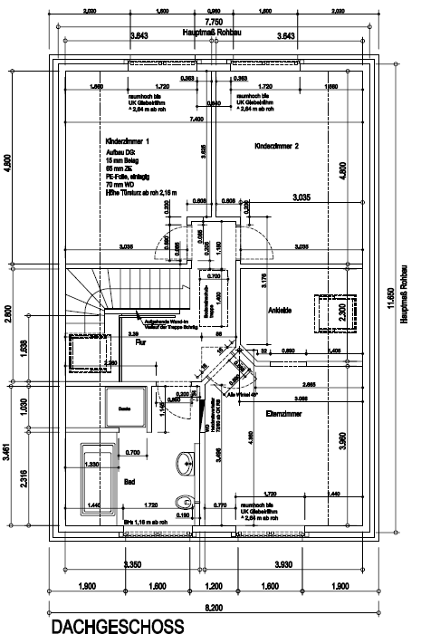
Und zu guter Letzt: der Schornstein. Meine Partnerin möchte ihn nicht Mittig setzen (so wie auf den 2 Bild zu sehen). Damit verlieren wir im Obergeschoss keine Fläche (etwa 160mmx360mm) und Gewinnen im Erdgeschoss etwas mehr Platz für den Lautsprecher und Leinwandbreite. Dafür steht er dann aber nicht Mittig, was mich noch etwas zweifeln lässt. Ideen ?!
Das Obergeschoss folgt, ich muss erstmal das Erdgeschoss klären

Vielen Dank für jede konstruktive Hilfe!

